CINEMATEK & ARTS CENTER

East Liberty, Pittsburgh PA

[Professor Jeremy Ficca with Mike McNutt]

A multi-functional cinema center for the urban neighborhood of East Liberty in Pittsburgh, PA exploring the bridge between technology and art in today's culture and the role of architecture among this debate.


diagrammatic concept models

 

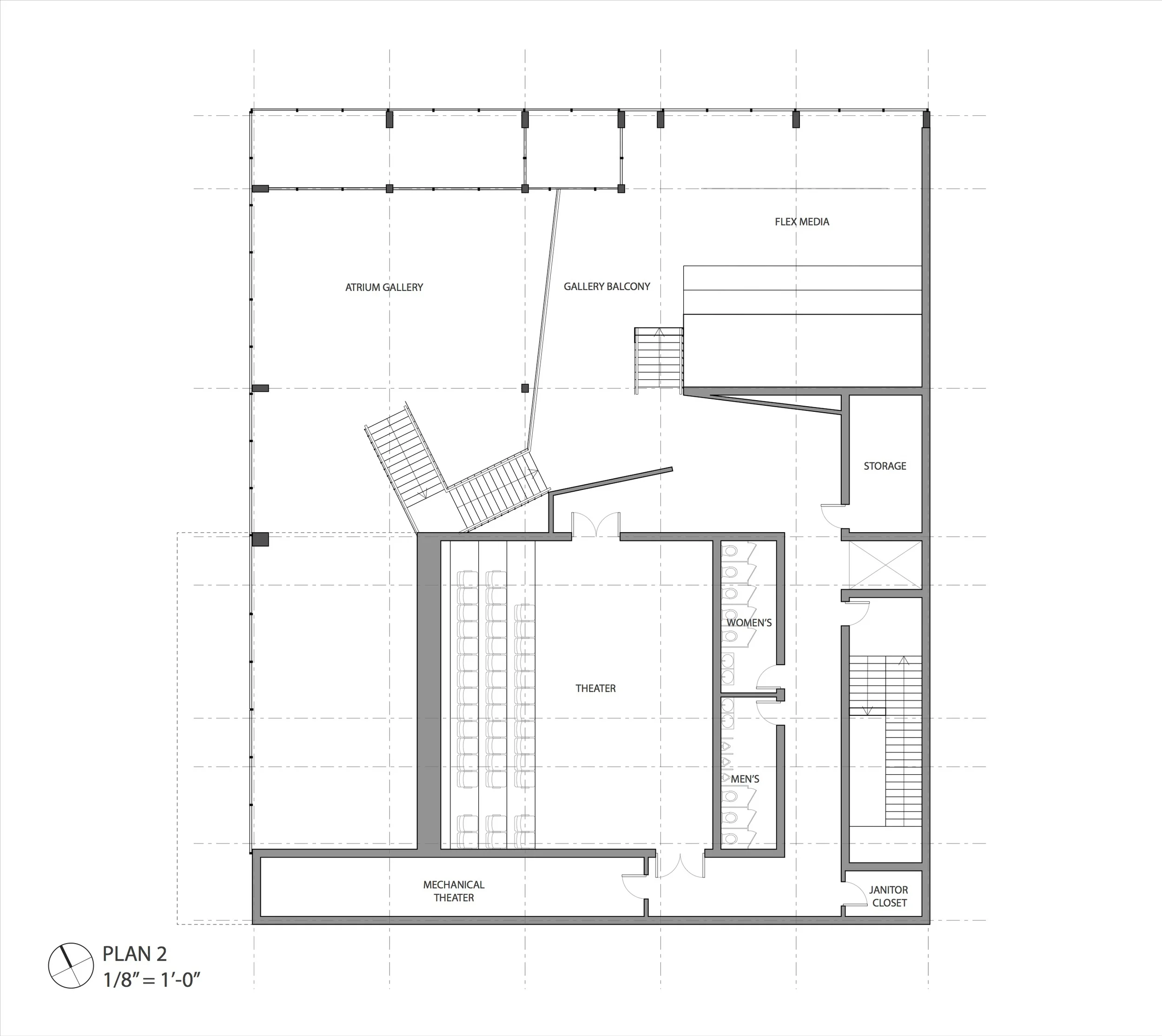
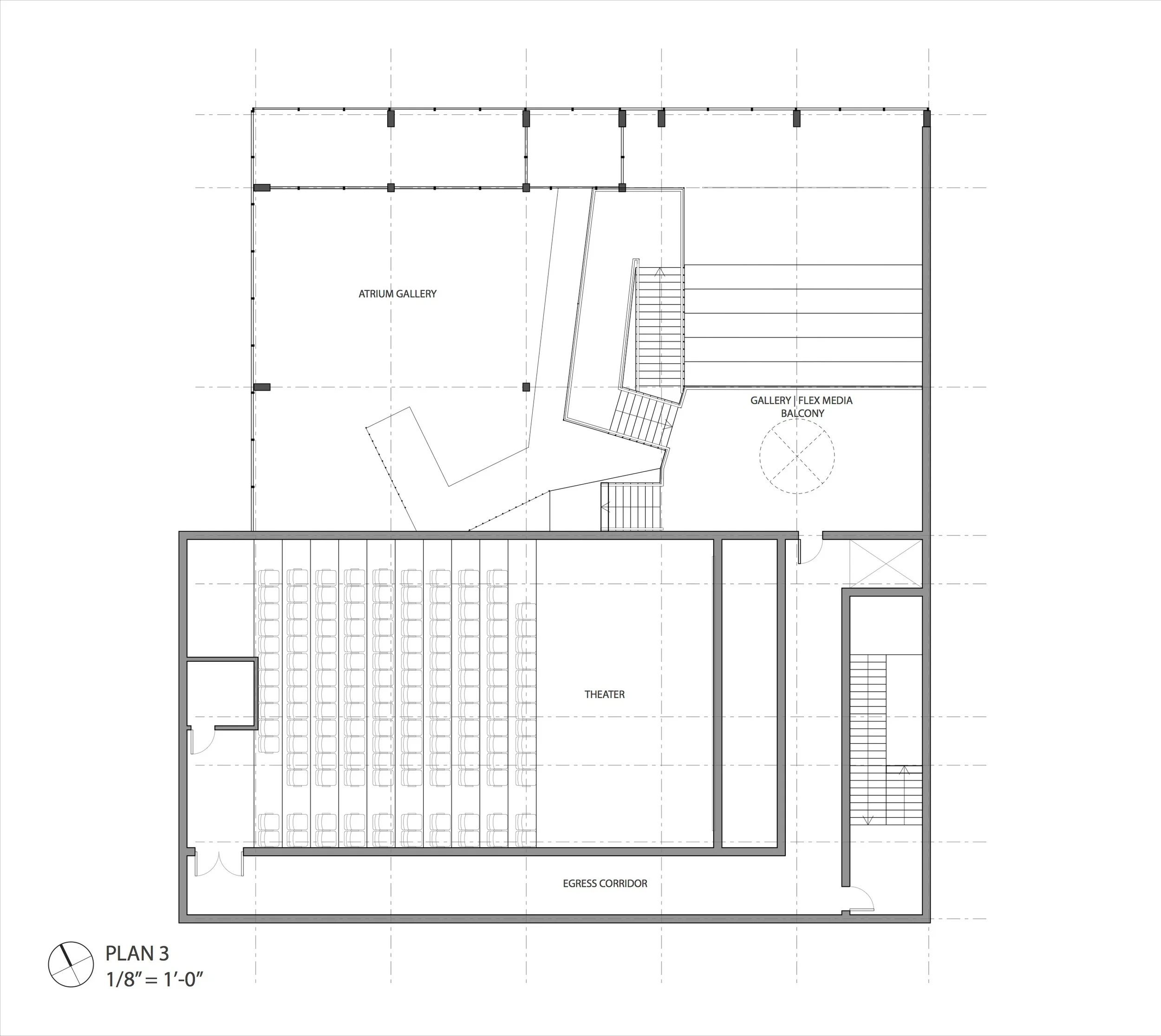
The given program focused on a movie theater and an arts gallery in a multi-use building. The gallery-goer and the theater-goer have contrasting processions inherent in their nature that has influenced the architectural concept. The gallery has a strong reflective procession where the theater is a clear destination where people attend and then promptly leave at the end of the movie. These two parts of the program could work together to encourage a discourse among the users and also start to manifest architecturally.  The theater reads as a solid, centralized program component and the gallery as a more transparent program with an exterior focus that could be dispersed and occupy the void space of the solid.  

 

This gallery activates the void space through a cable hanging system of sculptures, art, movie posters, media screens, lights and other components of the program such as the ticket counter and bars. The main circulation stairs are suspended using the same system as the hanging art in the void space. The gallery focus is this 4 story atrium space for hanging larger works of art. The adjacent balconies of the supporting gallery spaces allow for constantly changing views of the atrium as you proceed up through the multiple gallery levels on your way to or from the movie, media space, or bar.